Besoin d'aide pour placer un piano dans un salon en U
-
un.passant
- Messages : 4
- Enregistré le : lun. 29 août, 2016 15:42
Besoin d'aide pour placer un piano dans un salon en U
Bonsoir,
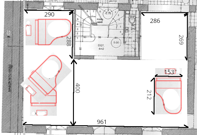
J'aurais besoin de conseils pour décider où il serait possible de placer un piano à queue (212cm de long, 153cm de large) dans un salon. La difficulté venant du fait que le salon est en U. En haut et au centre, ce serait l'entrée de la maison. En bas au centre, une entrée qui ne serait pas très utilisée.
En haut à droite, cela débouche sur la salle à manger et cuisine, donc beaucoup de passage : je voudrai éviter d'y mettre le piano.
Le plus pratique serait en haut à gauche, mais je ne sais pas si acoustiquement, ce serait trop à l'étroit.
Le dessin suivant est à l'échelle, avec les dimensions en cm : Qu'en pensez-vous ?
D'avance, merci beaucoup !
J'aurais besoin de conseils pour décider où il serait possible de placer un piano à queue (212cm de long, 153cm de large) dans un salon. La difficulté venant du fait que le salon est en U. En haut et au centre, ce serait l'entrée de la maison. En bas au centre, une entrée qui ne serait pas très utilisée.
En haut à droite, cela débouche sur la salle à manger et cuisine, donc beaucoup de passage : je voudrai éviter d'y mettre le piano.
Le plus pratique serait en haut à gauche, mais je ne sais pas si acoustiquement, ce serait trop à l'étroit.
Le dessin suivant est à l'échelle, avec les dimensions en cm : Qu'en pensez-vous ?
D'avance, merci beaucoup !
- BM607
- Modérateur
- Messages : 7199
- Enregistré le : mer. 23 mars, 2005 17:19
- Mon piano : YAMAHA : P120-num. + S4-1/4 queue 1m91
- Localisation : Marches de Bretagne
Re: Besoin d'aide pour placer un piano dans un salon en U
Eviter le coin haut/Gauche. Trop de surfaces à proximité qui pourraient occasionner trop de réflexions parasites affectant le son perçu du piano.
Les autres semblent bien meilleures, sans pouvoir mieux dire car il faudrait calculer tous les trajets des ondes sonores et calculer ainsi les possibles filtrages en peigne, ce qui est très compliqué et je pense pas forcément très fiable (dépend des absorptions des surfaces, des meubles, etc...), on préfère tester.
Vu la relative symétrie de la pièce, les deux emplacement droite ou gauche semblent à peu près équivalents.
BM
Les autres semblent bien meilleures, sans pouvoir mieux dire car il faudrait calculer tous les trajets des ondes sonores et calculer ainsi les possibles filtrages en peigne, ce qui est très compliqué et je pense pas forcément très fiable (dépend des absorptions des surfaces, des meubles, etc...), on préfère tester.
Vu la relative symétrie de la pièce, les deux emplacement droite ou gauche semblent à peu près équivalents.
BM
Je ne crains pas le suffrage universel, les gens voteront comme on leur dira.
A. de Tocqueville
A. de Tocqueville
-
un.passant
- Messages : 4
- Enregistré le : lun. 29 août, 2016 15:42
Re: Besoin d'aide pour placer un piano dans un salon en U
Merci beaucoup.BM607 a écrit : mar. 17 oct., 2023 14:28 Eviter le coin haut/Gauche. Trop de surfaces à proximité qui pourraient occasionner trop de réflexions parasites affectant le son perçu du piano.
Les autres semblent bien meilleures, sans pouvoir mieux dire car il faudrait calculer tous les trajets des ondes sonores et calculer ainsi les possibles filtrages en peigne, ce qui est très compliqué et je pense pas forcément très fiable (dépend des absorptions des surfaces, des meubles, etc...), on préfère tester.
Vu la relative symétrie de la pièce, les deux emplacement droite ou gauche semblent à peu près équivalents.
BM
C'est un peu ce que je craignais, surtout qu'il n'y aurait pas assez de place pour mettre aussi des étagères de livres. Je me demandais si des tapisseries pourraient suffire, mais je pense que le piano sera en bas à droite, peut-être dans la position inclinée et remontrée tant que ça ne gêne pas le passage vers le coin en haut à gauche.
- André Quesne
- Messages : 5349
- Enregistré le : lun. 19 juin, 2006 11:54
- Mon piano : Steinway B-211
Re: Besoin d'aide pour placer un piano dans un salon en U
Tous les pianos ont des roulettes, donc il est facile de faire des essais non seulement par le pianiste qui joue mais aussi avec les éventuels auditeurs.
A mon humble avis, pour que le son soit le mieux réparti dans tout le volume du U, le meilleur emplacement serait selon moi en bas à gauche. Mais la propagation du son a ses secrets. Rien ne peut remplacer les essais en fonction de ce que l'on veut obtenir sur le plan acoustique et aussi en fonction de ses goûts
A mon humble avis, pour que le son soit le mieux réparti dans tout le volume du U, le meilleur emplacement serait selon moi en bas à gauche. Mais la propagation du son a ses secrets. Rien ne peut remplacer les essais en fonction de ce que l'on veut obtenir sur le plan acoustique et aussi en fonction de ses goûts
Ma chaîne youtube: https://www.youtube.com/user/AndreQuesne/videos
- DIDIER25
- Messages : 5020
- Enregistré le : mar. 18 déc., 2012 22:19
- Mon piano : ORGUE JOHANNUS
- Localisation : BESANCON
- Contact :
Re: Besoin d'aide pour placer un piano dans un salon en U
Non André, tous les pianos (droits ou à queue) n'ont pas forcément de roulettes, bien loin de là même...... Mais on trouve assez facilement des "araignées" à emprunter ou louer qui peuvent très utilement contribuer à ces essais et aux déplacements !...... Comme toi, sans autre info je privilégie la solution en bas à gauche sur le plan, mais effectivement l'idéal serait d'essayer.
https://www.thomann.de/fr/jahn_fluegels ... stueck.htm
https://www.thomann.de/fr/jahn_fluegels ... stueck.htm
ET SI NOUS VALIONS MIEUX QUE LE BONHEUR ? - Franz Liszt.
- André Quesne
- Messages : 5349
- Enregistré le : lun. 19 juin, 2006 11:54
- Mon piano : Steinway B-211
Re: Besoin d'aide pour placer un piano dans un salon en U
Tu m'apprends quelque chose Didier. Je n'ai jamais vu de pianos sans roulettes ( sauf peut-être quelques modèles de type shipendal) mais je n'ai pas la prétention de tout connaître n'étant pas dans le métier.
Cependant j'ai encore mon vieux piano d'enfant "un Mertens" cadre en bois, acheté d'occasion par mes parents qui a peut-être pas loin de 150 ans et qui est muni de roulettes...
Je pense que les araignées dont tu parles se trouvent plutôt dans les conservatoires ce qui permet de mobiliser plus facilement les pianos d'une sale à l'autre. Ils enlèvent dans ce cas les roulettes d'origine.
Afin de parfaire mes connaissances connais-tu des marques de pianos neufs livrés sans roulettes ?
Cependant j'ai encore mon vieux piano d'enfant "un Mertens" cadre en bois, acheté d'occasion par mes parents qui a peut-être pas loin de 150 ans et qui est muni de roulettes...
Je pense que les araignées dont tu parles se trouvent plutôt dans les conservatoires ce qui permet de mobiliser plus facilement les pianos d'une sale à l'autre. Ils enlèvent dans ce cas les roulettes d'origine.
Afin de parfaire mes connaissances connais-tu des marques de pianos neufs livrés sans roulettes ?
Ma chaîne youtube: https://www.youtube.com/user/AndreQuesne/videos
- H.Selmer
- Messages : 1910
- Enregistré le : dim. 16 janv., 2011 20:32
- Mon piano : Blüthner B,1,2&4 Petrof P135 K1 AdSilent
- Localisation : Au pied du Château-Gaillard (Eure)
Re: Besoin d'aide pour placer un piano dans un salon en U
Chez Blüthner, en neuf, 2 modèles de piano sont livrés sans roulettes : le PH grand et le Crystal Edition Hive extravaganza !André Quesne a écrit : mar. 17 oct., 2023 22:11 Afin de parfaire mes connaissances connais-tu des marques de pianos neufs livrés sans roulettes ?![]()
La musique est la langue des émotions. (Kant)
Voler, c'est voir le monde avec les yeux de Dieu !
Voler, c'est voir le monde avec les yeux de Dieu !
- André Quesne
- Messages : 5349
- Enregistré le : lun. 19 juin, 2006 11:54
- Mon piano : Steinway B-211
Re: Besoin d'aide pour placer un piano dans un salon en U
Merci pour l'info ! Je suppose que ce sont plutôt des pianos droits ?
J'étais loin de penser que ça existait
J'étais loin de penser que ça existait
Ma chaîne youtube: https://www.youtube.com/user/AndreQuesne/videos
-
blyssou
- Messages : 2354
- Enregistré le : ven. 09 juil., 2021 2:36
- Mon piano : En attente!
- Localisation : Zurich / Palo Alto
Re: Besoin d'aide pour placer un piano dans un salon en U
Ou sont les sources de chaleurs?
- DIDIER25
- Messages : 5020
- Enregistré le : mar. 18 déc., 2012 22:19
- Mon piano : ORGUE JOHANNUS
- Localisation : BESANCON
- Contact :
Re: Besoin d'aide pour placer un piano dans un salon en U
Je pensais plutôt à des pianos anciens, Blüthner, Pleyel, Kriegelstein, Erard...... Mais il me semble que les Grotrian anciens n'étaient pas tous équipés. Les pianos modernes sont tous équipés, je crois.
Oui pour les araignées dans les conservatoires et écoles, mais aussi dans beaucoup de salles de spectacles. Les loueurs en possèdent et peuvent les prêter ou les louer.
Plusieurs grands pianos à queue sans roulettes en photo sur les pages de "Pianos Balleron".
Oui pour les araignées dans les conservatoires et écoles, mais aussi dans beaucoup de salles de spectacles. Les loueurs en possèdent et peuvent les prêter ou les louer.
Plusieurs grands pianos à queue sans roulettes en photo sur les pages de "Pianos Balleron".
Modifié en dernier par DIDIER25 le mar. 17 oct., 2023 23:03, modifié 2 fois.
ET SI NOUS VALIONS MIEUX QUE LE BONHEUR ? - Franz Liszt.
- H.Selmer
- Messages : 1910
- Enregistré le : dim. 16 janv., 2011 20:32
- Mon piano : Blüthner B,1,2&4 Petrof P135 K1 AdSilent
- Localisation : Au pied du Château-Gaillard (Eure)
Re: Besoin d'aide pour placer un piano dans un salon en U
Non ! Ce sont des pianos à queue !André Quesne a écrit : mar. 17 oct., 2023 22:26 Merci pour l'info ! Je suppose que ce sont plutôt des pianos droits ?
J'étais loin de penser que ça existait![]()
Un PH Grand :
Il y a, aussi, des pianos droits comme les Blüthner-Haessler :
La musique est la langue des émotions. (Kant)
Voler, c'est voir le monde avec les yeux de Dieu !
Voler, c'est voir le monde avec les yeux de Dieu !
- H.Selmer
- Messages : 1910
- Enregistré le : dim. 16 janv., 2011 20:32
- Mon piano : Blüthner B,1,2&4 Petrof P135 K1 AdSilent
- Localisation : Au pied du Château-Gaillard (Eure)
Re: Besoin d'aide pour placer un piano dans un salon en U
Le Cristal Edition Hive extravaganza en blanc :
La musique est la langue des émotions. (Kant)
Voler, c'est voir le monde avec les yeux de Dieu !
Voler, c'est voir le monde avec les yeux de Dieu !
- André Quesne
- Messages : 5349
- Enregistré le : lun. 19 juin, 2006 11:54
- Mon piano : Steinway B-211
Re: Besoin d'aide pour placer un piano dans un salon en U
Merci à vous pour l'info.
C'est curieux que certains modèles soient encore livrés sans roulettes. Les constructeurs ne devraient-ils pas penser au déplacement éventuel de l'instrument ? A moins que ce soit fait volontairement sur certains modèles à la préférence de certains acheteurs mais pourquoi ?
Même si c'est sans importance, ce soir j'ai au moins appris quelque chose !
C'est curieux que certains modèles soient encore livrés sans roulettes. Les constructeurs ne devraient-ils pas penser au déplacement éventuel de l'instrument ? A moins que ce soit fait volontairement sur certains modèles à la préférence de certains acheteurs mais pourquoi ?
Même si c'est sans importance, ce soir j'ai au moins appris quelque chose !
Ma chaîne youtube: https://www.youtube.com/user/AndreQuesne/videos
-
un.passant
- Messages : 4
- Enregistré le : lun. 29 août, 2016 15:42
Re: Besoin d'aide pour placer un piano dans un salon en U
Excellente question, même si a priori je pourrais les déplacer dans le cadre d'une rénovation.
C'est pour ce genre de raison que même s'il serait pertinent de déplacer le piano pour chercher le meilleur endroit a posteriori, je préférerais avoir une idée a priori afin d'adapter la pièce au piano et à sa localisation.
Je vais me renseigner sur les positions actuelles des radiateurs.
EDIT: Il y a une cheminée en bas à gauche mais je ne l'ai pas mentionnée sur le plan car elle sera condamnée.
Modifié en dernier par un.passant le mer. 18 oct., 2023 10:30, modifié 1 fois.
-
blyssou
- Messages : 2354
- Enregistré le : ven. 09 juil., 2021 2:36
- Mon piano : En attente!
- Localisation : Zurich / Palo Alto
Re: Besoin d'aide pour placer un piano dans un salon en U
A mon sens, on peut tjs travailler sur l’accoustique meme si ce n’edt pas toujours parfait. Mais etre proche d’une source de chaleur directe endommage le piano et c’est plus difficile de travailler sur ce point
- Nick Borderline
- Messages : 3197
- Enregistré le : dim. 22 nov., 2015 13:49
- Mon piano : Steingraeber & Söhne droit 116cm
- Localisation : Courbevoie
- Contact :
Re: Besoin d'aide pour placer un piano dans un salon en U
Vu que probablement 99% du temps tu vas jouer de ton piano et pas donner un concert, je dirais…de privilégier la plus belle vue pour toi. En haut à droite, tu vois un mur, en bas à gauche, ton escalier, en bas à droite, la vue extérieure par ta porte fenêtre. Si tu as une belle vue, je vote pour la 3e solution.
Nick Borderline https://www.youtube.com/channel/UC2DNVl ... y2w/videos
- quazart
- Messages : 7090
- Enregistré le : dim. 04 juin, 2017 0:06
- Mon piano : Yamaha C1X
- Localisation : ND du Guildo (22)
Re: Besoin d'aide pour placer un piano dans un salon en U
Une petite chose à ne pas négliger : l'exposition du piano à la lumière du soleil, à éviter... plus facile à régler avec des rideaux si nécessaire.